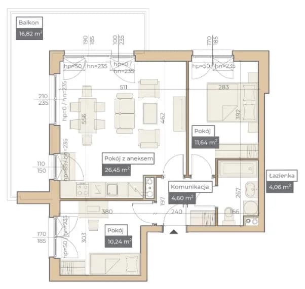
Oznaczenia okien na rzutach architektonicznych to kluczowy element projektów budowlanych. Pomagają zrozumieć układ pomieszczeń i ich funkcjonalność. Właściwe odczytanie tych symboli jest ważne dla przyszłych właścicieli mieszkań.
Rysunki zawierają informacje o wymiarach okien, ich typach otwierania oraz wysokości parapetów. Okna są zazwyczaj przedstawiane jako prostokąty z liczbami wskazującymi ich rozmiar. Mogą być też oznaczone numerami zestawczymi, ułatwiającymi identyfikację w dokumentacji.
Najważniejsze informacje:- Wymiary okien podawane są w centymetrach (szerokość/wysokość)
- Typ otwierania może być nieotwieralny, uchylny, rozwierny, przesuwny lub uchylno-rozwierny
- Wysokość parapetu powinna wynosić co najmniej 85 cm od podłogi
- Numery zestawcze ułatwiają odnalezienie okna w dokumentacji
- Zrozumienie oznaczeń pomaga w planowaniu aranżacji wnętrz
Podstawy symboliki okien na rysunkach architektonicznych
Oznaczenia okien na rzucie to kluczowy element planów architektonicznych. Symbole te pozwalają szybko odczytać typ, rozmiar i sposób otwierania okien.
Kształty i linie w symbolach okien mają konkretne znaczenie. Prostokąty reprezentują okna, a linie wewnątrz wskazują kierunek otwierania. Grubsze linie często oznaczają ramy, a cieńsze - szyby.
- Okno stałe: prosty prostokąt bez dodatkowych linii
- Okno rozwierne: prostokąt z łukiem pokazującym kierunek otwierania
- Okno uchylne: prostokąt z małym trójkątem u góry
- Okno uchylno-rozwierne: połączenie symboli okna rozwiernego i uchylnego
- Okno przesuwne: prostokąt z poziomą strzałką
Rodzaje okien i ich oznaczenia na rzutach
Oznaczenia okien na rzucie różnią się w zależności od typu. Okna stałe mają prostsze symbole, podczas gdy otwierane zawierają dodatkowe elementy wskazujące sposób otwarcia.
Okna uchylne, rozwierne i uchylno-rozwierne
Okna uchylne na planach mają symbol małego trójkąta u góry prostokąta. Pokazuje to, że górna część okna może się odchylać. Okna rozwierne oznacza się łukiem, który wskazuje kierunek otwierania skrzydła. Symbole okien w projekcie uchylno-rozwiernych łączą oba te elementy, co oznacza możliwość zarówno uchylania, jak i pełnego otwarcia.
Okna przesuwne i specjalne
Oznaczenia okien na rzucie dla typów przesuwnych zawierają zazwyczaj poziomą strzałkę wewnątrz prostokąta. Wskazuje to kierunek przesuwu skrzydła. Okna nietypowe, takie jak okrągłe czy trójkątne, są rysowane zgodnie z ich rzeczywistym kształtem. Czasem dodaje się też adnotację opisującą specyficzny mechanizm otwierania.
Interpretacja wymiarów okien na planach
System zapisu wymiarów w oznaczeniach okien na rzucie jest prosty i praktyczny. Zazwyczaj podaje się szerokość i wysokość w centymetrach, oddzielone ukośnikiem. Liczby te umieszcza się obok symbolu okna.
Na przykład, oznaczenie "150/120" przy symbolu okna oznacza, że ma ono 150 cm szerokości i 120 cm wysokości.
| Pomieszczenie | Typowe wymiary okna |
|---|---|
| Salon | 180x150 cm |
| Sypialnia | 150x150 cm |
| Kuchnia | 120x150 cm |
| Łazienka | 60x60 cm |
Znaczenie wysokości parapetów w projektach
Wysokość parapetów w oznaczeniach elementów budowlanych podaje się zwykle jako odległość od podłogi do dolnej krawędzi okna. Oznacza się ją skrótem "h=" lub "Hp=" z podaną wartością w centymetrach.
Wysokość parapetu ma duży wpływ na funkcjonalność pomieszczenia. Niskie parapety zwiększają dopływ światła i widoczność, ale ograniczają możliwość ustawienia mebli pod oknem. Wysokie parapety dają więcej prywatności i przestrzeni do aranżacji, ale mogą zmniejszać ilość naturalnego światła.
System numeracji okien w dokumentacji technicznej
Numeracja okien w legendzie rysunków technicznych służy do łatwej identyfikacji każdego elementu. Zwykle stosuje się kolejne liczby lub kombinacje liter i cyfr. Ten system umożliwia szybkie odnalezienie szczegółowych informacji o konkretnym oknie w specyfikacji technicznej.
Aby znaleźć szczegóły okna, wystarczy odszukać jego numer w zestawieniu stolarki okiennej, które jest częścią dokumentacji projektowej.
Praktyczne wskazówki czytania oznaczeń okien
Zawsze zwracaj uwagę na skalę rysunku. Pamiętaj, że symbole są uproszczone i mogą nie odzwierciedlać dokładnego wyglądu okna. Sprawdzaj legendę rysunku, która wyjaśnia znaczenie użytych symboli. Zwróć uwagę na kontekst - położenie okna w stosunku do ścian i innych elementów.
- Mylenie okien rozwiernych z przesuwnymi
- Ignorowanie informacji o wysokości parapetów
- Nieprawidłowe odczytywanie wymiarów (szerokość/wysokość)
- Przeoczenie oznaczeń okien nietypowych lub specjalnych
- Niezwracanie uwagi na skalę rysunku przy interpretacji rozmiarów

Przykłady typowych oznaczeń okien w różnych pomieszczeniach
Okna w pomieszczeniach mieszkalnych
W salonie i sypialni oznaczenia okien na rzucie często wskazują na duże, rozwierne lub uchylno-rozwierne okna. Symbole te zazwyczaj zawierają łuki pokazujące kierunek otwierania. W salonach można też spotkać oznaczenia okien balkonowych, sięgających od podłogi do sufitu.
Okna w kuchni i łazience
Oznaczenia okien na rzucie w kuchni często wskazują na okna uchylne lub uchylno-rozwierne, umieszczone nad blatem roboczym. W łazienkach symbole zwykle przedstawiają małe, wysoko umieszczone okna uchylne, zapewniające prywatność. Często towarzyszy im informacja o zastosowaniu szyb matowych lub ornamentowych.
| Pomieszczenie | Typowe oznaczenie okna | Charakterystyka |
|---|---|---|
| Salon | Duży prostokąt z łukiem | Rozwierne, często balkonowe |
| Sypialnia | Średni prostokąt z symbolem uchylno-rozwiernym | Zapewnia wentylację i zaciemnienie |
| Kuchnia | Mniejszy prostokąt z symbolem uchylnym | Nad blatem, ułatwia wentylację |
| Łazienka | Mały prostokąt z wysokim parapetem | Wysoko umieszczone, często matowe |
Klucz do zrozumienia planów mieszkań: Praktyczny przewodnik po oznaczeniach okien
Oznaczenia okien na rzucie to niezbędny element każdego projektu architektonicznego. Zrozumienie tych symboli pozwala na lepszą interpretację planów i podejmowanie świadomych decyzji przy projektowaniu lub zakupie mieszkania.
Od prostych prostokątów reprezentujących okna stałe, po bardziej złożone symbole okien uchylno-rozwiernych, każde oznaczenie niesie ze sobą istotne informacje. Wymiary, sposób otwierania, a nawet wysokość parapetów - wszystko to można odczytać z prawidłowo oznaczonego rzutu. Pamiętajmy, że czytanie rzutów architektonicznych to umiejętność, która przydaje się nie tylko profesjonalistom, ale i przyszłym mieszkańcom.Praktyczne wskazówki przedstawione w artykule, takie jak zwracanie uwagi na skalę rysunku czy kontekst umieszczenia okna, pomogą uniknąć typowych błędów w interpretacji planów mieszkań. Dzięki tej wiedzy, każdy może stać się bardziej świadomym uczestnikiem procesu projektowania czy wyboru swojego idealnego mieszkania.




